潔凈棚加工圖|潔凈棚制作圖:
廣州梓凈主營潔凈棚空氣凈化設備產品,本文展示一組本公司的潔凈棚加工圖,潔凈棚制作圖供大家參考、學習使用。
在展示潔凈棚加工圖|潔凈棚制作圖之前,先了解一下潔凈棚的相關產品、知識。

潔凈棚工作原理:
風機從FFU頂部將空氣吸入,經初效過濾器,潔凈棚高效過濾器過濾,過濾后的潔凈空氣在整個出風面以0.45m/s±20%的風速勻速送出到潔凈棚內。使潔凈空氣氣流呈垂直單向流,從而保證了工作區內所要求的潔凈度。
“梓凈”牌潔凈棚配置:
1.潔凈棚頂部滿布FFU(FFU可參考潔凈棚FFU);
2.框架:以工業鋁材(或不銹鋼方通、鐵方通噴塑)作為框架穩固、美觀、不生銹、不產塵;
3.防靜電垂簾:四周圍用防靜電垂簾(或鋼化玻璃),防靜電效果好、透明度高、網格清晰、柔韌度好、不變形、不易老化;
4.風機濾網機組FFU:采用離心風機,具有長壽命、低噪聲、免維護、震動小、可無級變速等特性,風機質量可靠,工作壽命長,加上獨特的風道設計,大大提高了風機的效率、降低了噪聲!內部凈化級別可達100-100K級;特別適用于車間內局部凈化級別要求高的區域,如流水線作業區域。
5.內部采用凈化室專用凈化燈,不產塵也可采用普通照明燈。
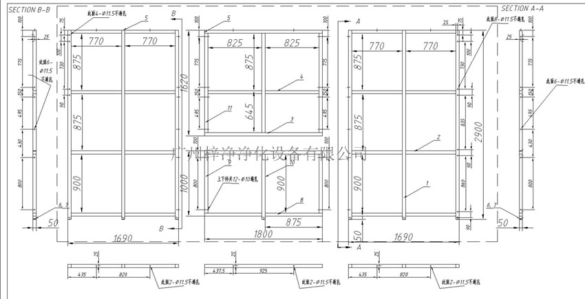
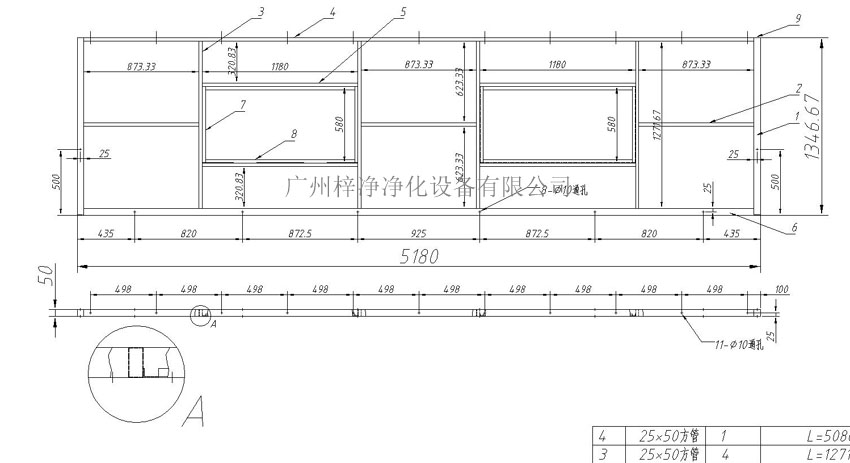
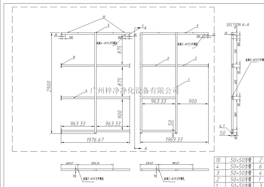
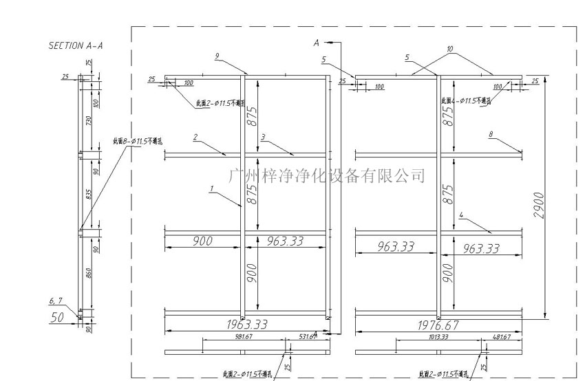
下面展示一組潔凈棚加工圖|潔凈棚制作圖供大家參考、學習使用:






潔凈棚加工圖、潔凈棚制作圖看似簡單,真的制作起來還是需要找專業廠家為您設計、定制、加工。
看完了潔凈棚加工圖|潔凈棚制作圖,推薦了解“梓凈”更多潔凈棚產品,點擊下面鏈接直達產品:
